ResBIM Dataset

Fully Automated Synthetic BIM Dataset Generation Using a Deep Learning-Based Framework

a Division of Sustainable Energy and Environmental Engineering, Graduate School of Engineering, The University of Osaka, Osaka, 565-0871, Japan

b Advanced Research Laboratories, Tokyo City University, Tokyo, 158-8557, Japan

c The University of Osaka, Osaka, Japan

Automation in Construction (2026)

BIM model

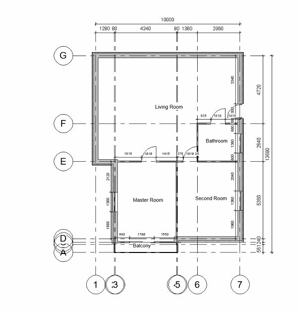
Annotated floor plan

Point cloud

Examples from the ResBIM dataset. Each BIM model corresponds to an annotated floor plan and an RGB point cloud representation.

We introduce ResBIM, a synthetic BIM dataset of 1000+ paired samples of 3D parametric BIMs and annotated 2D floor plans, created using CNNs and rule-based algorithms for research in 2D-to-BIM automation.

Abstract

Building information models (BIMs) are essential for efficient building operation, yet most existing buildings only have two-dimensional (2D) drawings, leading to increased interest in 2D-to-BIM reconstruction. To address the data scarcity hindering automated BIM reconstruction and evaluation, this paper presents a deep learning-based fully automated framework for BIM dataset generation. The approach uses image processing to define polygonal boundaries, applies neural networks to generate geometric layouts, and augments semantic information with predefined data for BIM generation via software application programming interfaces (APIs). The resulting Residential unit BIM (ResBIM) is a synthetic dataset comprising over 1000 paired BIMs (RVT format) and their corresponding 2D floor plans automatically annotated via a toolbox, filling a critical gap in BIM data availability. This work provides a scalable automated BIM reconstruction solution and establishes the foundation for future AI-driven BIM automation research.

Citation

@article{LIANG2026106584,
  title = {Fully automated synthetic BIM dataset generation using a deep learning-based framework},
  journal = {Automation in Construction},
  volume = {181},
  pages = {106584},
  year = {2026},
  issn = {0926-5805},
  doi = {https://doi.org/10.1016/j.autcon.2025.106584},
  url = {https://www.sciencedirect.com/science/article/pii/S0926580525006247},
  author = {Xing Liang and Nobuyoshi Yabuki and Tomohiro Fukuda}
}